0
Skip to Content
Nhaarv Realty
Portfolio
Contact
About
Who are we
Team
Open Menu
Close Menu
Nhaarv Realty
Portfolio
Contact
About
Who are we
Team
Open Menu
Close Menu
Portfolio
Contact
Folder:
About
Back
Who are we
Team
Next
Next
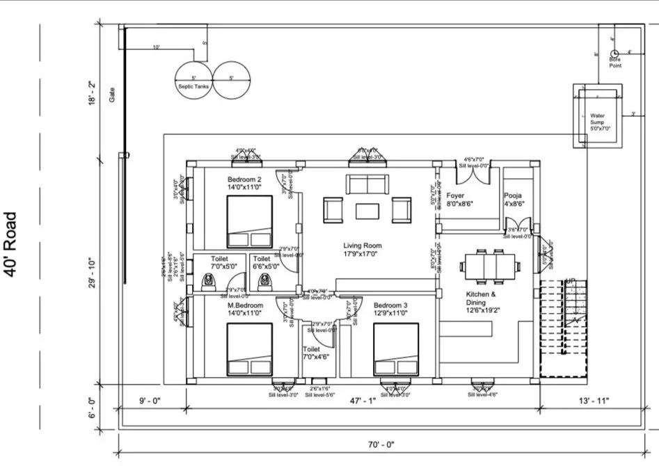
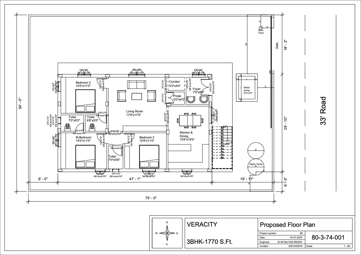
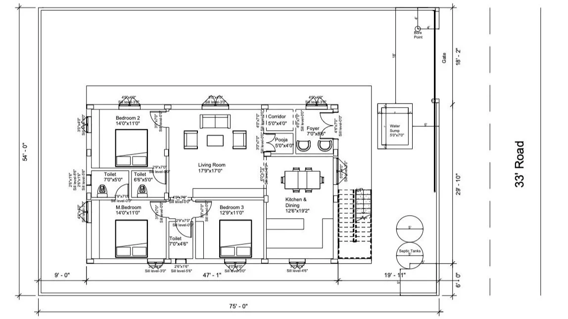
Aarna Spaces Tadipatri